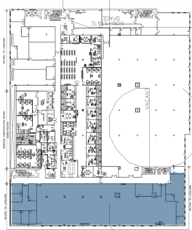
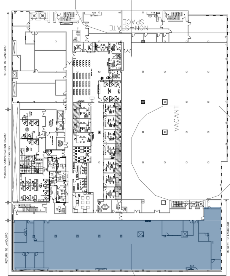
- Address: 16825 Jamaica Avenue Queens, NY 11432
- Floor: 3rd
- Asking Rent: $40 PRSF AS IS
- Term: 5-15 years
- Size: 5,00 – 28,000 RSF
- Electric: Sub-metered at 100%
- Heating/Cooling: HVAC Air and heat, gas fired
- Building Access: 24/7 with notice overtime charge
Ideal for creative, tech, nonprofit, or medical users seeking character and convenience in a prime Jamaica Queens
Term: 5–15 Years
Electric: 100% Sub-metered
Access: 24/7 with OT charges
Exclusively listed by Hebron Realty
Rob Hebron, CCIM, SIOR | 347-528-5077 | Rob@HebronRE.com










